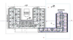
LE GUYANE HOTEL
(Projet d'extension)
Lieu
Année
Maître(s) d'ouvrage
Surface
Coût
Mission
CAYENNE
2025
Privé
1100 m²
1.200.000 € ht
Mission complète
![]() | ![]() |
|---|---|
![]() | ![]() |
![]() | ![]() |
![]() | ![]() |
|---|---|
![]() | ![]() |
![]() | ![]() |
![]() | ![]() |
![]() | ![]() |
![]() |
Lieu
Année
Maître(s) d'ouvrage
Surface
Coût
Mission
CREIL
2023
Privé
1100 m²
1.000.000 € ht
Conception
HOTEL VILOLI
HOTEL DU NORD
Lieu
Année
Maître(s) d'ouvrage
Surface
Coût
Mission
PARIS
2025
Privé
280 m²
400 000 € ht
PC+EXE
![]() |
|---|
![]() |
![]() |
![]() |
![]() |
Villa SARRAZIN
Lieu
Année
Maître(s) d'ouvrage
Surface
Coût
Mission
ARGENTEUIL
2022
Privé
75 m²
100.000 € ht
Complète
![]() Après travaux | ![]() Après travaux |
|---|---|
![]() Après travaux | ![]() |
![]() Chantier | ![]() Chantier |
![]() Existant |
Lieu
Année
Maître(s) d'ouvrage
Surface
Coût
Mission
RIS ORANGIS
2018
FEDERIM
190 m²
155.000 € ht
Complète
Coeur de ris
![]() | ![]() |
|---|---|
![]() | ![]() |
![]() | ![]() |
![]() | ![]() |
Gîte NATURE CATHARE
Lieu
Année
Maître(s) d'ouvrage
Surface
Coût
Mission
LERAN
2016
SAS LA TANNERIE
- m²
- €
Permis de construire
![]() | ![]() 09G10346 |
|---|---|
![]() | ![]() |
![]() | ![]() |
![]() | ![]() Projet |
![]() Projet | ![]() Projet |
![]() Avant travaux |
Résidence LE TREIZIEME
Vitry-Sur-Seine
2016
SCI LE TREIZIEME
- m²
- €
Permis de construire -EXE
Lieu
Année
Maître(s) d'ouvrage
Surface
Coût
Mission
![]() Après | ![]() Après1 |
|---|---|
![]() IMG-20170303-WA0011 | ![]() IMG-20170211-WA0016 |
![]() IMG-20170211-WA0007 | ![]() IMG-20170303-WA0014 |
![]() IMG-20170303-WA0005 | ![]() Avant |
![]() Avant2 |
Maison créole traditionnelle
Cayenne
2015
SCI ESMERALDA
- m²
- €
Permis de construire -EXE
Lieu
Année
Maître(s) d'ouvrage
Surface
Coût
Mission
![]() Après travaux | ![]() Après travaux |
|---|---|
![]() Après travaux | ![]() Après travaux |
![]() Avant travaux | ![]() Avant travaux |
![]() Avant travaux |




























































